|
房子基本資料 | 案名 | 八里區賢一街【家麗堡】透天|近13行博物館、64快、渡船頭 | 案號 | 113職四129金 114/10/15(三) 10:30 |
---|
地址 | 新北市八里區賢一街69號 | 社區/大樓 | 家麗堡 |
---|
銷售狀態 | 待標中 | 售價 | 售1800萬 |
---|
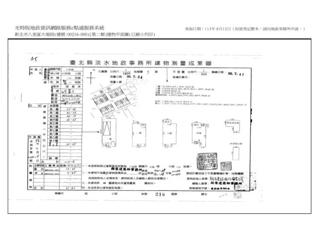
房子類型 | 法拍透天 | 總登記坪數 | 71.08 坪 |
---|
格局 | 0房 | 屋齡 | 18年 |
---|
每坪單價 | 25.32萬/坪 | 公設比 | |
---|
車位 | | 法拍屋 | 本物件是法拍屋 拍次 : 第2拍 部分點交 開標日期 : 2025/10/15(三) 10:30
|
---|
建物所在樓層 | | 管理費 | |
---|
管委會 | 有 | 中庭 | 沒有 |
---|
電梯 | 未知 | 是否為凶宅 | |
---|
300公尺內嫌惡設施 | | 面前道路 | |
---|
面寬 | | 縱深 | |
---|
邊間 | 是 | 房子銷售來源 | 不動產經紀人/專業仲介 |
---|
房子特色 | 【法院筆錄內容】 1‧218建號建物拍定後點交。114地號土地拍賣不動產應有部分,查無債務人現實占有部分,拍定後不點交。
2‧114年4月16日現場查封指界時,債務人兒子在場稱目前為其單獨居住,惟現在實際情如何,仍請應買人自行查明注意。
3‧以上不動產分別標價,合併拍賣,以總價最高者得標。《法院案號:士林地方法院案號:114年度司執吉字第16770號,清償票款》
【保證金】
360萬 【拍賣履歴】
一拍2025/09/24流標底標價格2250萬
二拍2025/10/15底標價格1800萬
三拍底標價格1440萬
四拍底標價格1152萬
【焦點法拍履歴】
👩🏻⚖️從業二十年以上經驗|競競業業|正派經營
🎯投標準備⇥法拍流程說明|標單填寫|案件現場勘查有無特殊情事|成本評估分析
💰銀行貸款⇥法拍物件估價|投標人財力評估|銀行代墊款協助辦理|最高八成
🏡拍定得標⇥強制執行書狀、履勘陳報書狀往返|債務人搬遷協商|遺留物造冊查估
🎁委託代標⇥免費|委託代標未得標⇥免費
🏢鑫創資產管理有限公司
顏麗杏0911-965339營業員證號:(101)登字第212862號
連真甄0909-031993營業員證號:(101)登字第192002號
更多物件☞焦點法拍
經紀人李彥槿:109北市經證字第02110號 |
---|
坪數說明 | 建物登記總坪數 | 71.08 | 土地登記總坪數 | 30.3 |
---|
主建物坪數 | 61.64 | 停車位坪數 | |
---|
附屬建物坪數 | 9.62 | 公共設施坪數 | |
---|
增建坪數 | | 地下室坪數 | |
---|
周邊環境 | 生活機能 | | 鄰近交通 | |
---|
鄰近地標 | 近十三行博物館、八里渡船頭老街、台北港、64快速道路、61快速道路 | 公園綠地 | |
---|
鄰近學區 | | 捷運站 | |
---|
房子聯絡人資訊 | 聯絡人姓名 | 小顏 (煩請告知聯絡人,您是在889房子網看到這則廣告,真摯感恩您的幫忙) | Line加入好友 | |
---|
手機 |  0911-965-339(小顏) | 所屬公司名稱 | 鑫創資產管理有限公司 |
---|
公司電話 | | 公司傳真 | |
---|
公司地址 | 新北市新莊區中環路二段423號一樓 |
---|
網址 | http://www.1314home.tw |
---|
贊助商廣告
買八里透天
八里法拍透天-1 八里法拍透天-2 八里法拍透天-3 八里法拍透天-4 八里法拍透天-5 八里法拍透天-6 八里法拍透天-7 八里法拍透天-8
|
|
物件地圖
|
物件留言
請注意,如果您詢問的內容與物件不相符合或是廣告,經過審核,系統將會直接刪除您的發問內容
|
檢舉物件不實
|
黃金曝光
 - 透天_別墅
- 141.11坪
- 售2271萬
 - 透天_康橋雙語學校 / 5房
- 95.34坪
- 售3090萬
|
相似物件
 - 透天
- 39.58坪
- 售1681萬
 - 透天_別墅 / 4房
- 71.08坪
- 售1800萬
 - 透天_別墅
- 71.08坪
- 售1800萬
 - 透天 / 4房
- 30.47坪
- 售1990萬
 - 透天
- 39.58坪
- 售1681萬
 - 透天_別墅
- 71.08坪
- 售1800萬
|