鹽水區透天

房子基本資料
案名盬水溫馨車墅・學區旁全新翻新宅案號
地址台南市鹽水區忠孝路
銷售狀態帶看中售價
售1180萬
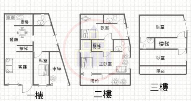
房子類型透天總登記坪數20.27 坪
格局5房,1廳,4衛,2陽台,1廚房屋齡49年
每坪單價58.21萬/坪公設比
車位一樓平面車位法拍屋本物件不是法拍屋
建物所在樓層0管理費
管委會沒有中庭沒有
電梯未知 是否為凶宅不是
300公尺內嫌惡設施面前道路5
面寬10.5縱深11~14
邊間房子銷售來源不動產經紀人/專業仲介
房子特色
✨物件亮點

・整棟翻新、水電管線全面更新,免整修即可入住

・廚房中島設計,讓烹飪不只是料理,更是家人間的互動時光

・每間衛浴皆有開窗,採光通風佳、乾爽又衛生

・一樓設有孝親房,長輩起居方便,三代同堂好貼心

・大面寬格局,空間方正好利用,動線流暢、生活舒適

🌸生活機能

・位於盬水國小、盬水國中學區旁,孩子上下課安全又便利

・巷口就是7-11,日常採買超方便

・近中山高速公路、台19線,南來北往交通便捷

・鬧中取靜環境佳,兼具生活機能與居住品質

💡適合對象

✔想讓家人舒適生活的換屋家庭

✔重視屋況、希望直接入住的買方

✔退休返鄉、或在地自住的理想首選

🏠這是一棟有故事、有溫度的家,讓您一走進就能感受到家的歸屬感。

歡迎您的蒞臨賞屋(地)

歡迎您電洽:0960-559-835

歡迎加LINEID0960559835

更多房屋資訊歡迎google搜尋~

點我➤House-Infohttp://www.0960559835.com/

點我➤我的粉絲專頁看更多台南房地產新聞

https://www.facebook.com/May0960559835/?ref=pages_you_manage

大台南不動產新市南科店

以上資訊如有登記錯誤,以登記簿謄本及合約書為主

經紀人:蔡嘉玲(93)南市字第00178號

尚盈不動產有限公司台南市新市區仁愛街183號

在地堅強陣容

打破品牌迷思、在地用心經營

您的真心託付、我們用心服務

急缺農、建、工業地、透天車墅、公寓大樓

一流的團隊、快速的成交、安全交易買賣有保障

馬上來電委託~租售均有服務~代租屋代管理皆可

#南科房屋買賣#善化土地#南科土地#南科買房#善化買地



#善化投資#南科投資#南科房屋買賣

坪數說明
建物登記總坪數20.27土地登記總坪數23.44
主建物坪數20.27停車位坪數
附屬建物坪數公共設施坪數
增建坪數地下室坪數
周邊環境
生活機能鄰近交通
鄰近地標公園綠地月津港親水公園
鄰近學區鹽水國小,鹽水國中,明達國中捷運站
房子聯絡人資訊
聯絡人姓名王麗梅
(煩請告知聯絡人,您是在889房子網看到這則廣告,真摯感恩您的幫忙)
Line加入好友Line加入好友
手機
0960-559-835(王麗梅)
所屬公司名稱大台南不動產新市店
公司電話0960559835 (06-5890559)公司傳真06-5898001
公司地址台南市新市區仁愛街183號
網址http://www.0960559835.com
贊助商廣告
台南廠房,台南廠辦,台南農地小廠房,台南便宜工業廠房
台南廠房,台南廠房買賣,台南廠房出租
買鹽水透天
台南鹽水透天-1
台南鹽水透天-1
台南鹽水透天-2
台南鹽水透天-2
台南鹽水透天-3
台南鹽水透天-3
台南鹽水透天-4
台南鹽水透天-4
台南鹽水透天-5
台南鹽水透天-5
台南鹽水透天-6
台南鹽水透天-6
台南鹽水透天-7
台南鹽水透天-7
台南鹽水透天-8
台南鹽水透天-8
台南鹽水透天-9
台南鹽水透天-9
台南鹽水透天-10
台南鹽水透天-10
台南鹽水透天-11
台南鹽水透天-11
台南鹽水透天-12
台南鹽水透天-12
台南鹽水透天-13
台南鹽水透天-13
台南鹽水透天-14
台南鹽水透天-14
台南鹽水透天-15
台南鹽水透天-15
物件留言
請注意,如果您詢問的內容與物件不相符合或是廣告,經過審核,系統將會直接刪除您的發問內容
等待圖示
檢舉物件不實
等待圖示
黃金曝光
相似物件

+8-07-7963288客服電話
本房子網站為租用式開放房仲網站建置平台, 僅提供房子仲介會員刊登 - 鹽水區透天 - 等房子 / 土地 / 廠房 / 法拍資訊參考, 並不涉入任何諮詢、交易。物件(服務)聯絡人公佈的圖文影音資訊若有侵犯智財權或與客戶聯絡交易過程中若衍生民事或刑事等法律問題, 皆與本網站無關。
●電話:07-7963288